Kitchen Design for Eunice
This project was one we see all the time - breathing new life into an existing kitchen. Staying in the same footprint - upgrading everything and injecting some new style.
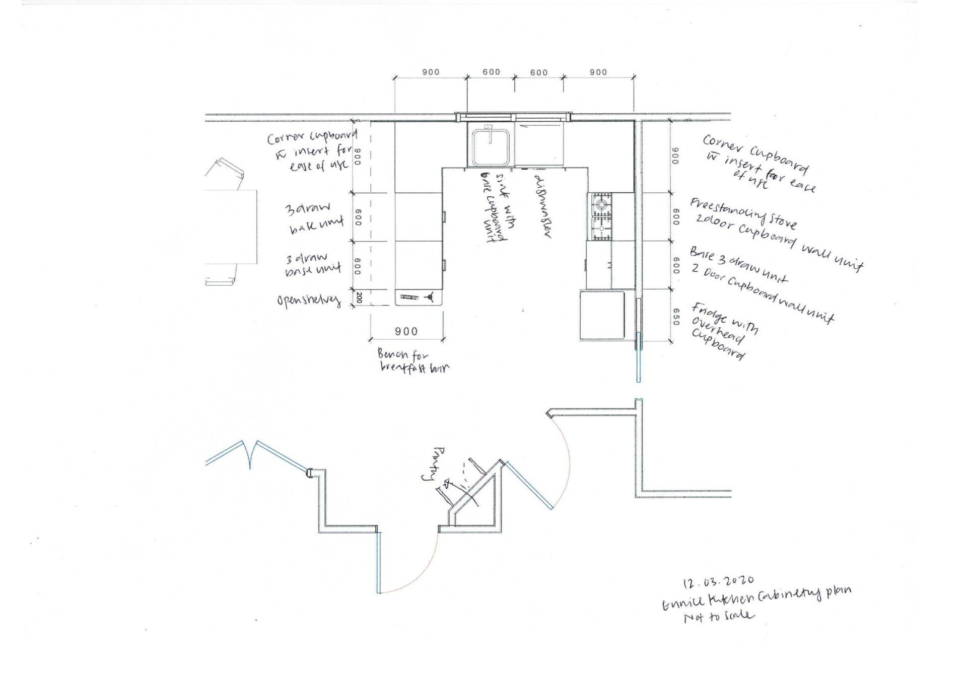
Because this job was completed remotely for a Christchurch builder the first part of the job is making sure everyone is on the same page - we do this via floor plans, site photos and getting a good understanding of the brief.
Once the brief was understood we got to work designing a solution that meets the clients needs - in this instance a challenge was playing with options of how to do the pantry which was separate to the rest of the kitchen. During this stage we did 3D paper models in order to visualise our different solutions.
Once all the layout decisions were made with the help of our paper models we map out the final layout and send it through for confirmation from the client and local builder. This allows him to begin his process with quoting.
The last part of our process for this job was helping the customer decide on colours - she had her heart set on a bottle green glass splashback so we had that to work around.
Consent Drawings
Peter Pothoven
Consnet for Garage Conversion
G Sands
- Rudy van Vlerken
3D Design & Drafting for Building Company
- Tania & Trevor
Landscaping 3D Design
-Insitu Building Company
3D Design & Drafting for Building Company
- Janeen Paynter
3D Design for Full Home Renovation
- Profound Group
3D Design & Drafting for Building Company
Level 2, 59 Queens Drive,
Lower Hutt, New Zealand 5040
Phone: 0800 792 993
Email: hello@pzazzdesign.co.nz